Gascoigne Halman
Mortgages Instant Valuation Expert Valuation menu Menu

2 Bedroom House Sold STC

Burlow Road, Buxton

£175,000

  • Description & Photos
  • Floorplans
  • EPC
  • Brochure
  • Property
    Location
  • Local
    Schools
  • Local
    Healthcare
  • Railway
    Stations
  • Check Your
    Council Tax Band
  • Request a Viewing

Images for Burlow Road, Buxton, SK17
Images for Burlow Road, Buxton, SK17
Images for Burlow Road, Buxton, SK17
Images for Burlow Road, Buxton, SK17
Images for Burlow Road, Buxton, SK17
Images for Burlow Road, Buxton, SK17
Images for Burlow Road, Buxton, SK17
Images for Burlow Road, Buxton, SK17
Images for Burlow Road, Buxton, SK17
Previous Next
Images for Burlow Road, Buxton, SK17
Images for Burlow Road, Buxton, SK17
Images for Burlow Road, Buxton, SK17
Images for Burlow Road, Buxton, SK17
Images for Burlow Road, Buxton, SK17
Images for Burlow Road, Buxton, SK17
Images for Burlow Road, Buxton, SK17
Images for Burlow Road, Buxton, SK17
Images for Burlow Road, Buxton, SK17
Previous Next

Features

  • Mid Terrace Property
  • Close to Shops
  • Generous Lounge
  • Garden to Rear
  • Two Double Bedrooms
  • Countryside Views
  • Downstairs WC

Description

Situated on Burlow Road, set back from the main road, this mid-terrace house with well proportioned accommodation throughout including two double bedrooms and a generous lounge. The property also includes a convenient downstairs WC and a well-maintained bathroom.

Enjoy picturesque countryside views to the rear of the property. The rear garden offers a private outdoor space, ideal for gardening or alfresco dining. Located close to local shops and amenities as well as the nearby countryside.

Material Information
  • Tenure - Freehold
  • Council Tax Band - B
  • Electricity - Ask in branch
  • Heating - Ask in branch
  • Water - Ask in branch
  • Sewerage - Ask in branch
  • Broadband - Ask in branch
  • Listed - Ask in branch
  • Flooded in last 5 years - Ask in branch
  • Accessibility / Adaptations - Ask in branch
  • Restrictions - Ask in branch
  • Required Access - Ask in branch
  • Any easements, servitudes, wayleaves - Ask in branch
  • Public/private right of way - Ask in branch


Share this property



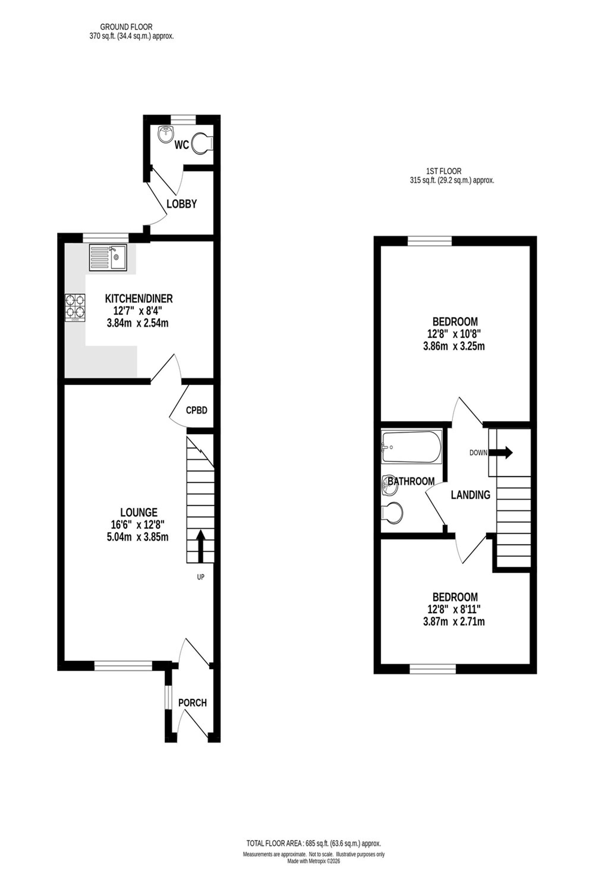
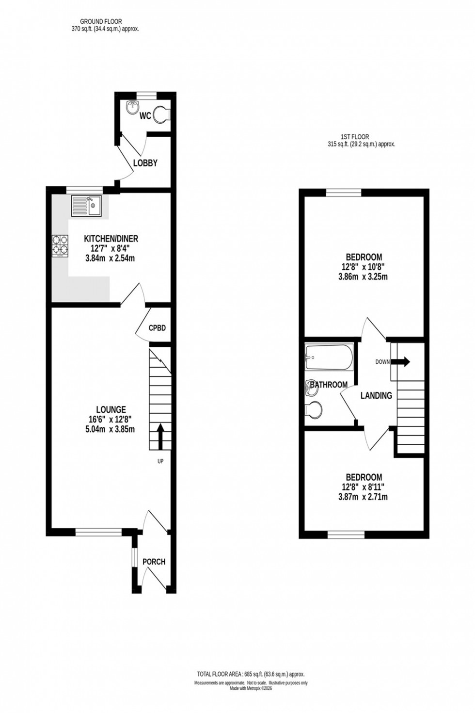
Floorplan for Burlow Road, Buxton, SK17



EPC Graph for Burlow Road, Buxton, SK17

Images for Burlow Road, Buxton, SK17
Images for Burlow Road, Buxton, SK17
Images for Burlow Road, Buxton, SK17
Images for Burlow Road, Buxton, SK17
Images for Burlow Road, Buxton, SK17
Images for Burlow Road, Buxton, SK17
Images for Burlow Road, Buxton, SK17
Images for Burlow Road, Buxton, SK17
Images for Burlow Road, Buxton, SK17
Previous Next
Images for Burlow Road, Buxton, SK17
Images for Burlow Road, Buxton, SK17
Images for Burlow Road, Buxton, SK17
Images for Burlow Road, Buxton, SK17
Images for Burlow Road, Buxton, SK17
Images for Burlow Road, Buxton, SK17
Images for Burlow Road, Buxton, SK17
Images for Burlow Road, Buxton, SK17
Images for Burlow Road, Buxton, SK17
Previous Next

2 Bedroom Sold STC

Burlow Road, Buxton

£175,000

Situated on Burlow Road, set back from the main road, this mid-terrace house with well proportioned accommodation throughout including two double bedrooms and a generous lounge. The property also includes a convenient downstairs WC and a well-maintained bathroom.

Enjoy picturesque countryside views to the rear of the property. The rear garden offers a private outdoor space, ideal for gardening or alfresco dining. Located close to local shops and amenities as well as the nearby countryside.

Share this property



Floorplans


Floorplan for Burlow Road, Buxton, SK17

EPC


EPC Graph for Burlow Road, Buxton, SK17
Request a Viewing Brochure Local Schools Local Healthcare Railway Stations
Gascoigne Halman

Gascoigne Halman Limited is registered in England and Wales under company number 2274169, Registered Office is 42 Alderley Road, Wilmslow, Cheshire, SK9 1NY. VAT Registration Number is 500 2481 05.

For activities relating to regulated mortgages and non-investment insurance contracts, Gascoigne Halman is an appointed representative of Connells Limited which is authorised and regulated by the Financial Conduct Authority. Connells Limited’s Financial Services Register number is 302221.

© 2026 Gascoigne Halman
Terms of Use | Privacy Policy & Notice | Cookie Preferences | CMP Certificate | CMP Membership Rules
Website designed and maintained by The Property Jungle

Quick Links


About Us

Buying

Selling

Letting

Mortgages

New Homes

Careers

Register

Contact Us

When Things Go Wrong


Follow us: Twitter Facebookinstagram

ARLA NAEA The Property Ombudsman TSI Rightmove On the Market
Close icon
  • Home
  • About Us
  • Buying
  • Selling
  • Letting
  • Mortgages
  • Land & New Homes
  • Register
  • Careers
  • Reviews
  • News
  • Contact Us