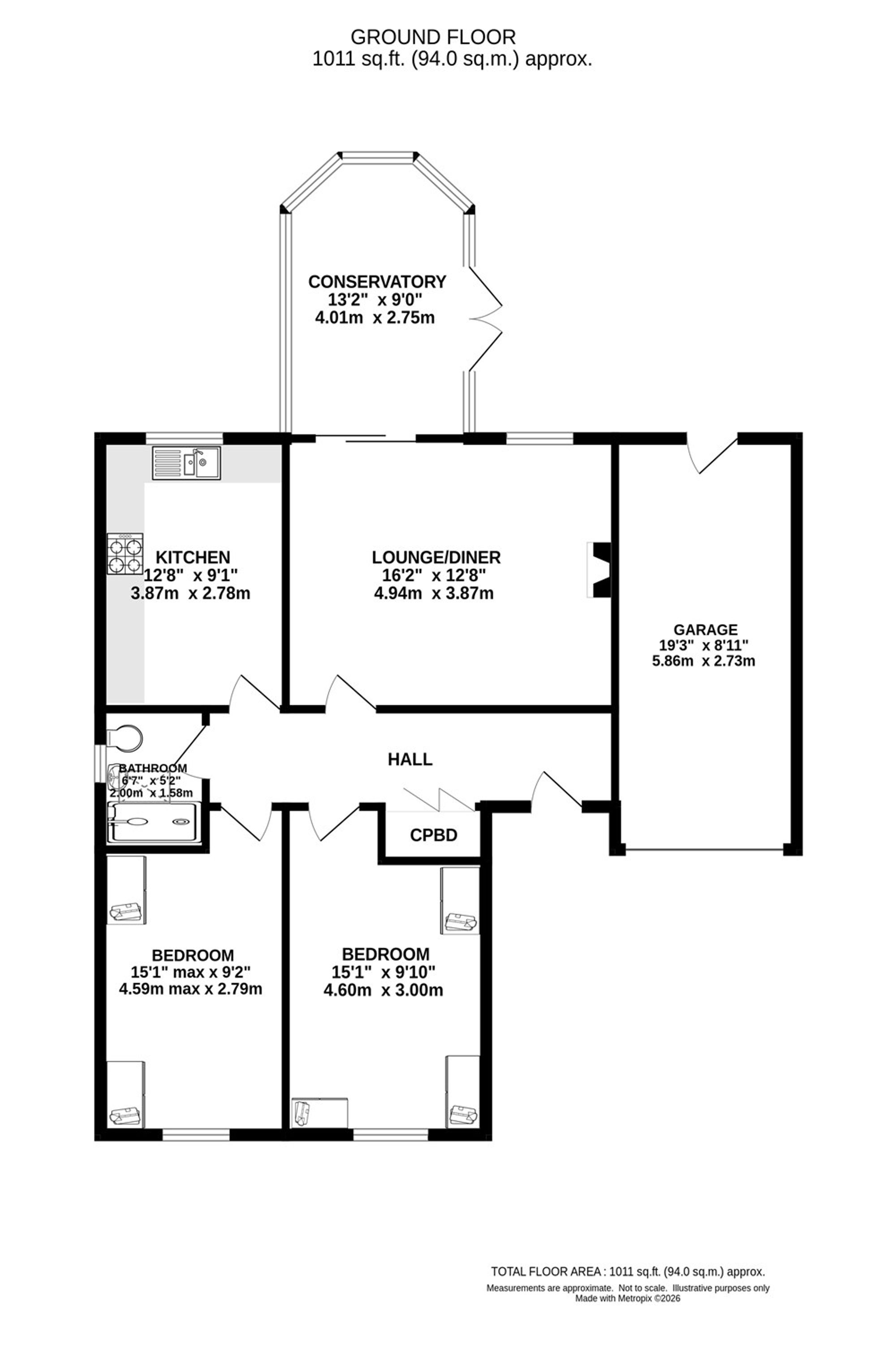
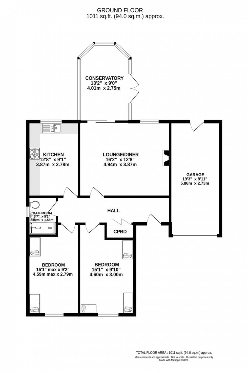
Situated in a peaceful cul-de-sac on Beaumont Drive, this well-maintained detached bungalow offers an excellent opportunity for comfortable single-level living. Boasting two double bedrooms and a spacious reception room, the property is thoughtfully designed to maximise space. The accommodation includes a conservatory to the rear, providing a bright and versatile additional living area that overlooks the low maintenance garden. Externally, the property benefits from off-road parking and an attached garage, enhancing convenience and security. The garden requires minimal upkeep, making it perfect for those seeking a manageable outdoor space. Presented in good condition throughout, this freehold bungalow combines practical living with a desirable location. The bungalow is only only a short walk to the 199 bus stop using the road links to Buxton, Chapel-en-le-Frith through to Stockport, as well as being convenient for access to nearby countryside, village hall and The Bull Ring.
Situated in a peaceful cul-de-sac on Beaumont Drive, this well-maintained detached bungalow offers an excellent opportunity for comfortable single-level living. Boasting two double bedrooms and a spacious reception room, the property is thoughtfully designed to maximise space. The accommodation includes a conservatory to the rear, providing a bright and versatile additional living area that overlooks the low maintenance garden. Externally, the property benefits from off-road parking and an attached garage, enhancing convenience and security. The garden requires minimal upkeep, making it perfect for those seeking a manageable outdoor space. Presented in good condition throughout, this freehold bungalow combines practical living with a desirable location. The bungalow is only only a short walk to the 199 bus stop using the road links to Buxton, Chapel-en-le-Frith through to Stockport, as well as being convenient for access to nearby countryside, village hall and The Bull Ring.