SOLD SSTC
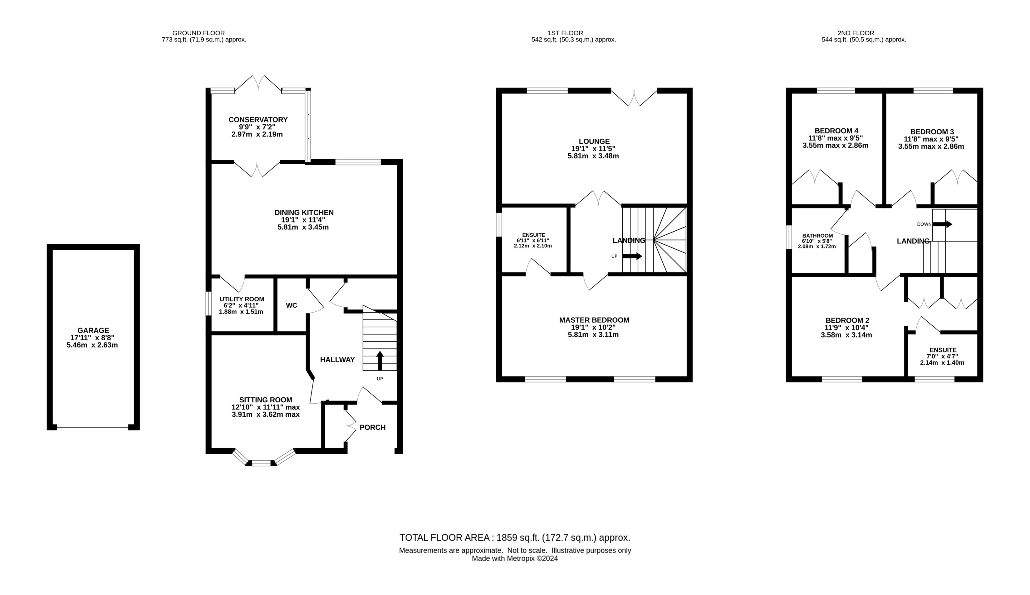
A spacious four bedroom end townhouse situated on an attractive tree-lined street in Appleton. With well presented accommodation over three floors, the property benefits from three bathrooms, downstairs WC and utility whilst an enclosed garden is to the rear and single garage behind.
SOLD SSTC
A spacious four bedroom end townhouse situated on an attractive tree-lined street in Appleton. With well presented accommodation over three floors, the property benefits from three bathrooms, downstairs WC and utility whilst an enclosed garden is to the rear and single garage behind.
 
                Gascoigne Halman Limited is registered in England and Wales under company number 2274169, Registered Office is 42 Alderley Road, Wilmslow, Cheshire, SK9 1NY. VAT Registration Number is 500 2481 05.
For activities relating to regulated mortgages and non-investment insurance contracts, Gascoigne Halman is an appointed representative of Connells Limited which is authorised and regulated by the Financial Conduct Authority. Connells Limited’s Financial Services Register number is 302221.
© 2025 Gascoigne Halman
Terms of Use | Privacy Policy & Notice | Cookie Preferences | CMP Certificate | CMP Membership Rules
Website designed and maintained by The Property Jungle