SOLD SSTC
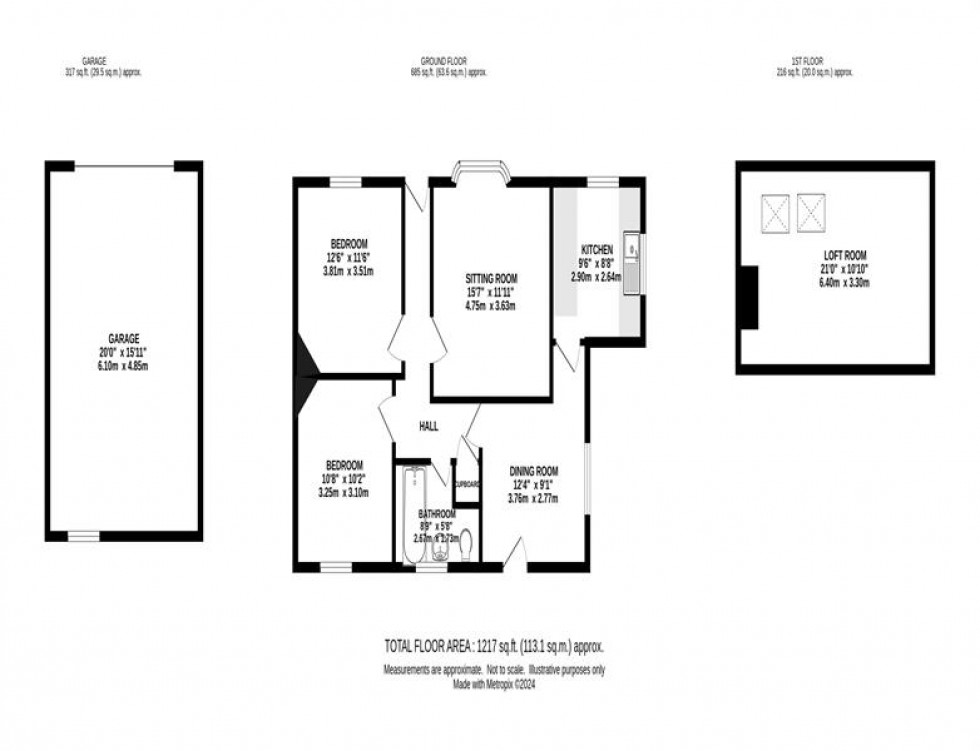
AN ATTRACTIVE STONE SEMI DETACHED BUNGALOW having a quiet hamlet setting close to the golf course. The property is beautifully presented and upgraded throughout with EXCELLENT LIVING, DINING AND KITCHEN SPACES plus TWO DOUBLE BEDROOMS. Set within a GLORIOUS MATURE GARDEN plus generous driveway parking and a DETACHED GARAGE. The location is close to amenities and public transport links.
SOLD SSTC
AN ATTRACTIVE STONE SEMI DETACHED BUNGALOW having a quiet hamlet setting close to the golf course. The property is beautifully presented and upgraded throughout with EXCELLENT LIVING, DINING AND KITCHEN SPACES plus TWO DOUBLE BEDROOMS. Set within a GLORIOUS MATURE GARDEN plus generous driveway parking and a DETACHED GARAGE. The location is close to amenities and public transport links.
Gascoigne Halman Limited is registered in England and Wales under company number 2274169, Registered Office is 42 Alderley Road, Wilmslow, Cheshire, SK9 1NY. VAT Registration Number is 500 2481 05.
For activities relating to regulated mortgages and non-investment insurance contracts, Gascoigne Halman is an appointed representative of Connells Limited which is authorised and regulated by the Financial Conduct Authority. Connells Limited’s Financial Services Register number is 302221.
© 2026 Gascoigne Halman
Terms of Use | Privacy Policy & Notice | Cookie Preferences | CMP Certificate | CMP Membership Rules
Website designed and maintained by The Property Jungle