3 Bedroom Semi Detached For Sale
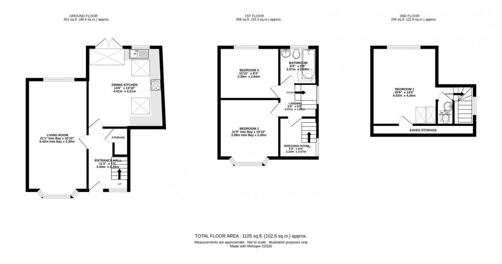
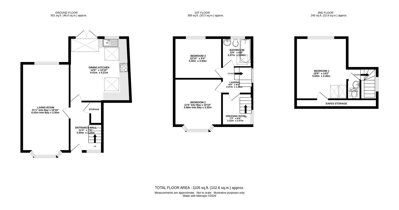
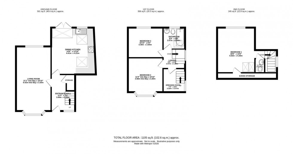
This beautifully extended three double bedroom semi-detached home has been finished to an exceptional standard throughout, offering stylish and spacious living ideal for modern family life. Measuring a highly impressive 1105 SQ FT over three floors the property is immaculately presented throughout, this home is ready to move straight into and would make an ideal purchase for families or professionals seeking both space and style. Located on a quiet yet popular cul de sac with off road parking for two vehicles to the front and a landscaped rear garden. Situated within walking distance to excellent transport links and the ever popular Burton Road with its array of bars, independent shops and restaurants.
3 Bedroom For Sale
This beautifully extended three double bedroom semi-detached home has been finished to an exceptional standard throughout, offering stylish and spacious living ideal for modern family life. Measuring a highly impressive 1105 SQ FT over three floors the property is immaculately presented throughout, this home is ready to move straight into and would make an ideal purchase for families or professionals seeking both space and style. Located on a quiet yet popular cul de sac with off road parking for two vehicles to the front and a landscaped rear garden. Situated within walking distance to excellent transport links and the ever popular Burton Road with its array of bars, independent shops and restaurants.
Gascoigne Halman Limited is registered in England and Wales under company number 2274169, Registered Office is 42 Alderley Road, Wilmslow, Cheshire, SK9 1NY. VAT Registration Number is 500 2481 05.
For activities relating to regulated mortgages and non-investment insurance contracts, Gascoigne Halman is an appointed representative of Connells Limited which is authorised and regulated by the Financial Conduct Authority. Connells Limited’s Financial Services Register number is 302221.
© 2026 Gascoigne Halman
Terms of Use | Privacy Policy & Notice | Cookie Preferences | CMP Certificate | CMP Membership Rules
Website designed and maintained by The Property Jungle