2 Bedroom Terraced For Sale
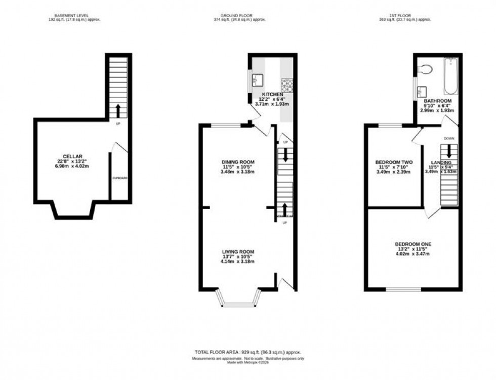
Situated in the heart of Didsbury village this stylish bay-fronted period terrace offers a healthy 929 sq ft of accommodation over three floors. Two reception rooms, modern fitted kitchen, two double bedrooms, contemporary three piece bathroom, converted cellar which is ideal for an additional reception room or office and courtyard style garden. Only moments from Didsbury Metrolink and all local amenities. Offered to the market with No Vendor Chain.
2 Bedroom For Sale
Situated in the heart of Didsbury village this stylish bay-fronted period terrace offers a healthy 929 sq ft of accommodation over three floors. Two reception rooms, modern fitted kitchen, two double bedrooms, contemporary three piece bathroom, converted cellar which is ideal for an additional reception room or office and courtyard style garden. Only moments from Didsbury Metrolink and all local amenities. Offered to the market with No Vendor Chain.
Gascoigne Halman Limited is registered in England and Wales under company number 2274169, Registered Office is 42 Alderley Road, Wilmslow, Cheshire, SK9 1NY. VAT Registration Number is 500 2481 05.
For activities relating to regulated mortgages and non-investment insurance contracts, Gascoigne Halman is an appointed representative of Connells Limited which is authorised and regulated by the Financial Conduct Authority. Connells Limited’s Financial Services Register number is 302221.
© 2026 Gascoigne Halman
Terms of Use | Privacy Policy & Notice | Cookie Preferences | CMP Certificate | CMP Membership Rules
Website designed and maintained by The Property Jungle