SOLD SSTC
Situated in the desirable location of Horderns Park Road, this charming stone-built semi-detached house offers a wonderful opportunity to acquire a traditional family home with character and potential.
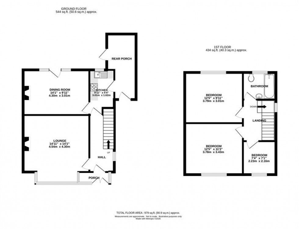
Boasting three well-proportioned bedrooms and two spacious reception rooms, providing ample living and entertaining space with door from the dining room opening into the garden. The accommodation is complemented by a well-appointed bathroom and a kitchen area.
Externally, the property benefits from off-road parking and a generous rear garden. Its location is particularly appealing, being close to the Memorial Park and within easy access to the town centre.
SOLD SSTC
Situated in the desirable location of Horderns Park Road, this charming stone-built semi-detached house offers a wonderful opportunity to acquire a traditional family home with character and potential.
Boasting three well-proportioned bedrooms and two spacious reception rooms, providing ample living and entertaining space with door from the dining room opening into the garden. The accommodation is complemented by a well-appointed bathroom and a kitchen area.
Externally, the property benefits from off-road parking and a generous rear garden. Its location is particularly appealing, being close to the Memorial Park and within easy access to the town centre.
Gascoigne Halman Limited is registered in England and Wales under company number 2274169, Registered Office is 42 Alderley Road, Wilmslow, Cheshire, SK9 1NY. VAT Registration Number is 500 2481 05.
For activities relating to regulated mortgages and non-investment insurance contracts, Gascoigne Halman is an appointed representative of Connells Limited which is authorised and regulated by the Financial Conduct Authority. Connells Limited’s Financial Services Register number is 302221.
© 2026 Gascoigne Halman
Terms of Use | Privacy Policy & Notice | Cookie Preferences | CMP Certificate | CMP Membership Rules
Website designed and maintained by The Property Jungle