Gascoigne Halman
Mortgages Instant Valuation Expert Valuation menu Menu

3 Bedroom Terraced For Sale

Windsor Road, Buxton

Asking Price £190,000.00

  • Description & Photos
  • Floorplans
  • EPC
  • Brochure
  • Property
    Location
  • Local
    Schools
  • Local
    Healthcare
  • Railway
    Stations
  • Check Your
    Council Tax Band
  • Request a Viewing

Images for Windsor Road, Buxton
Images for Windsor Road, Buxton
Images for Windsor Road, Buxton
Images for Windsor Road, Buxton
Images for Windsor Road, Buxton
Images for Windsor Road, Buxton
Images for Windsor Road, Buxton
Images for Windsor Road, Buxton
Images for Windsor Road, Buxton
Images for Windsor Road, Buxton
Images for Windsor Road, Buxton
Images for Windsor Road, Buxton
Previous Next
Images for Windsor Road, Buxton
Images for Windsor Road, Buxton
Images for Windsor Road, Buxton
Images for Windsor Road, Buxton
Images for Windsor Road, Buxton
Images for Windsor Road, Buxton
Images for Windsor Road, Buxton
Images for Windsor Road, Buxton
Images for Windsor Road, Buxton
Images for Windsor Road, Buxton
Images for Windsor Road, Buxton
Images for Windsor Road, Buxton
Previous Next

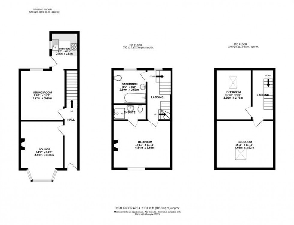
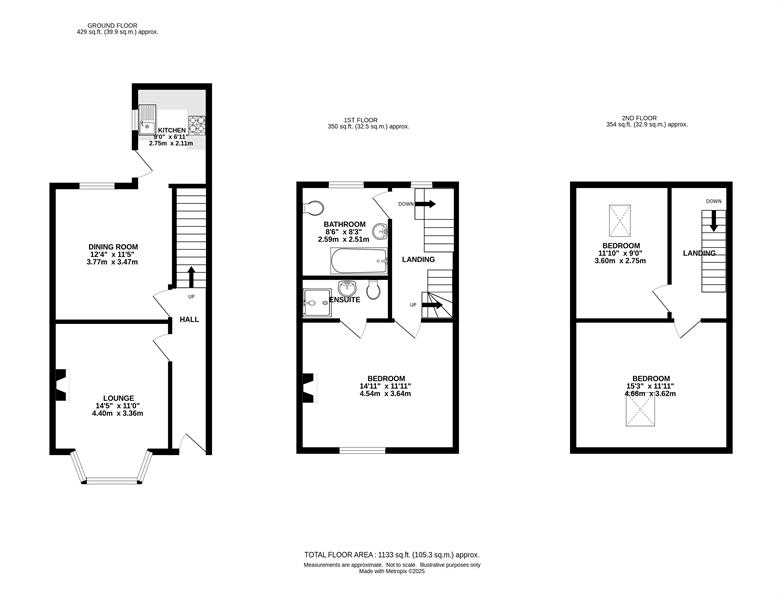
Features

  • Stone Built Terrace
  • Three Bedrooms
  • Ensuite to Master Bedroom
  • Two Reception Rooms
  • Accommodation Over Three Floors
  • Useful Cellars
  • Easy Access to Town Centre

Description

A traditional stone built terrace home with accommodation split over three floors.

The property offers generous living accommodation with two separate reception rooms including a bay fronted lounge, and a modern kitchen. The bedrooms are all of a generous size with the master bedroom benefiting from an ensuite shower room. Bedrooms two and three are located on the second floor and served by the family bathroom.

In addition to the living accommodation, the property benefits from cellars which are ideal for storage and there is a yard to the rear with tiered garden.

Located on Windsor Road, the property is ideally located for easy access to the town centre and many amenities it has to offer.



Material Information
  • Council Tax Band - B
  • Electricity - Mains Supply
  • Heating - Gas
  • Water - Mains Supply
  • Sewerage - Ask in branch
  • Broadband - NONE
  • Listed - No
  • Flooded in last 5 years - Ask in branch
  • Accessibility / Adaptations - Ask in branch
  • Restrictions - Ask in branch
  • Required Access - Ask in branch
  • Any easements, servitudes, wayleaves - Ask in branch
  • Public/private right of way - Ask in branch


Share this property



Floorplan for Windsor Road, Buxton



EPC Graph for Windsor Road, Buxton

Images for Windsor Road, Buxton
Images for Windsor Road, Buxton
Images for Windsor Road, Buxton
Images for Windsor Road, Buxton
Images for Windsor Road, Buxton
Images for Windsor Road, Buxton
Images for Windsor Road, Buxton
Images for Windsor Road, Buxton
Images for Windsor Road, Buxton
Images for Windsor Road, Buxton
Images for Windsor Road, Buxton
Images for Windsor Road, Buxton
Previous Next
Images for Windsor Road, Buxton
Images for Windsor Road, Buxton
Images for Windsor Road, Buxton
Images for Windsor Road, Buxton
Images for Windsor Road, Buxton
Images for Windsor Road, Buxton
Images for Windsor Road, Buxton
Images for Windsor Road, Buxton
Images for Windsor Road, Buxton
Images for Windsor Road, Buxton
Images for Windsor Road, Buxton
Images for Windsor Road, Buxton
Previous Next

3 Bedroom For Sale

Windsor Road, Buxton

Asking Price £190,000.00 

A traditional stone built terrace home with accommodation split over three floors.

The property offers generous living accommodation with two separate reception rooms including a bay fronted lounge, and a modern kitchen. The bedrooms are all of a generous size with the master bedroom benefiting from an ensuite shower room. Bedrooms two and three are located on the second floor and served by the family bathroom.

In addition to the living accommodation, the property benefits from cellars which are ideal for storage and there is a yard to the rear with tiered garden.

Located on Windsor Road, the property is ideally located for easy access to the town centre and many amenities it has to offer.



Share this property



Floorplans


Floorplan for Windsor Road, Buxton

EPC


EPC Graph for Windsor Road, Buxton
Request a Viewing Brochure Local Schools Local Healthcare Railway Stations
Gascoigne Halman

Gascoigne Halman Limited is registered in England and Wales under company number 2274169, Registered Office is 42 Alderley Road, Wilmslow, Cheshire, SK9 1NY. VAT Registration Number is 500 2481 05.

For activities relating to regulated mortgages and non-investment insurance contracts, Gascoigne Halman is an appointed representative of Connells Limited which is authorised and regulated by the Financial Conduct Authority. Connells Limited’s Financial Services Register number is 302221.

© 2026 Gascoigne Halman
Terms of Use | Privacy Policy & Notice | Cookie Preferences | CMP Certificate | CMP Membership Rules
Website designed and maintained by The Property Jungle

Quick Links


About Us

Buying

Selling

Letting

Mortgages

New Homes

Careers

Register

Contact Us

When Things Go Wrong


Follow us: Twitter Facebookinstagram

ARLA NAEA The Property Ombudsman TSI Rightmove On the Market
Close icon
  • Home
  • About Us
  • Buying
  • Selling
  • Letting
  • Mortgages
  • Land & New Homes
  • Register
  • Careers
  • Reviews
  • News
  • Contact Us