3 Bedroom Semi Detached For Sale
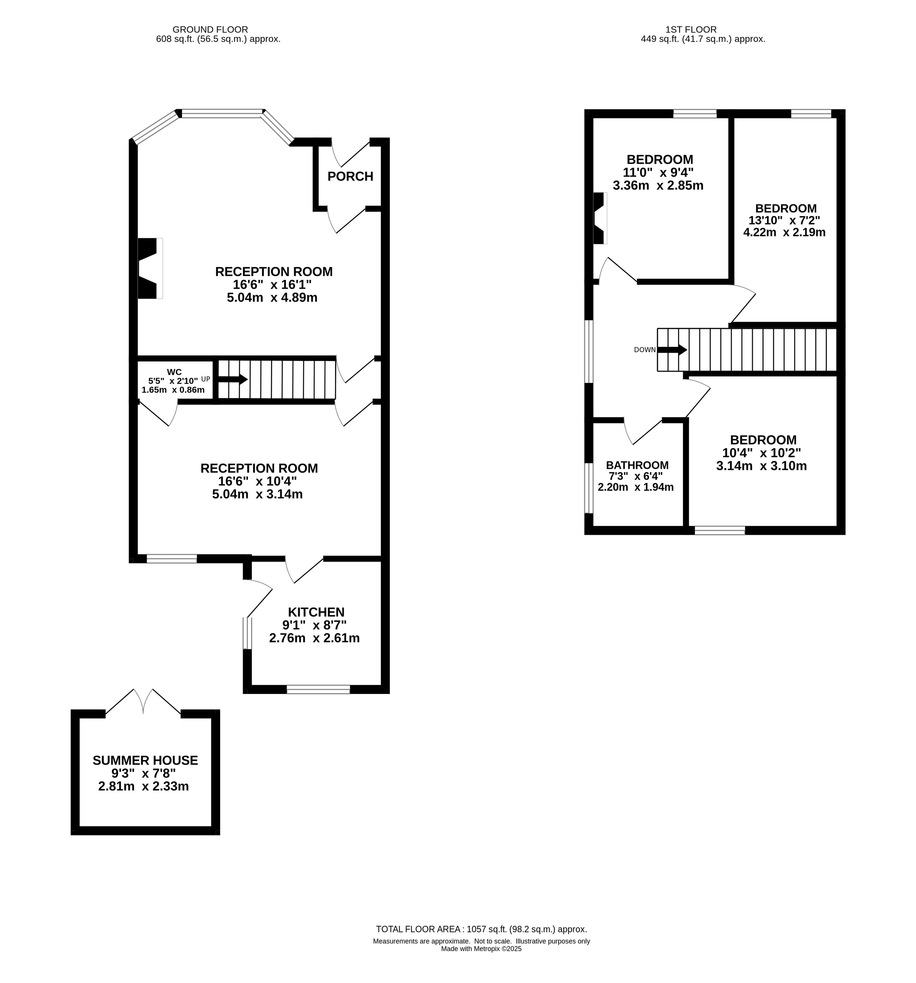
A most attractive semi detached period property presented to an extremely high standard throughout. Boasting THREE bedrooms, off road PARKING and low maintenance rear garden. **VIEWING RECOMENDED**.
 
                                3 Bedroom For Sale
A most attractive semi detached period property presented to an extremely high standard throughout. Boasting THREE bedrooms, off road PARKING and low maintenance rear garden. **VIEWING RECOMENDED**.
 
                         
                Gascoigne Halman Limited is registered in England and Wales under company number 2274169, Registered Office is 42 Alderley Road, Wilmslow, Cheshire, SK9 1NY. VAT Registration Number is 500 2481 05.
For activities relating to regulated mortgages and non-investment insurance contracts, Gascoigne Halman is an appointed representative of Connells Limited which is authorised and regulated by the Financial Conduct Authority. Connells Limited’s Financial Services Register number is 302221.
© 2025 Gascoigne Halman
Terms of Use | Privacy Policy & Notice | Cookie Preferences | CMP Certificate | CMP Membership Rules
Website designed and maintained by The Property Jungle